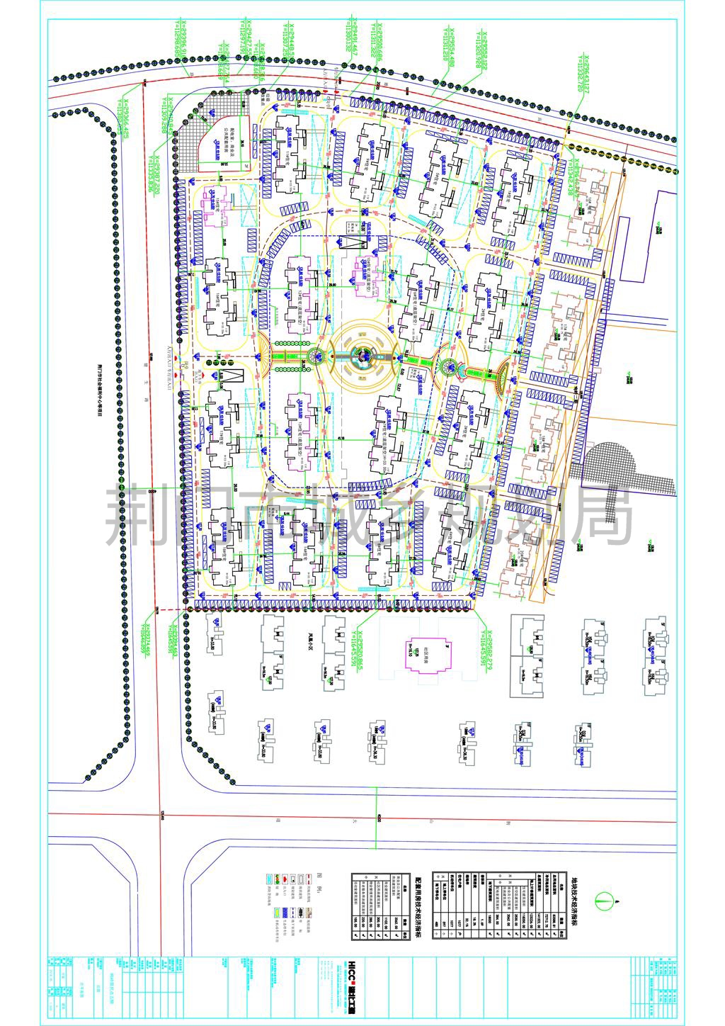
荆门市漳河新区管理委员会申报的响岭居民点五期规划及建筑方案调整位于高雄路以东、健生路以北。原方案2018年1月经市规委会专题会议审批通过。目前,因原设计方案商业配套用房不足,考虑到后期居民生活需求,现建设方申请对原方案进行适当调整,增设商业用房,并将原方案部分地方进行深化设计,调整后净用地面积72712.75平方米,总建筑面积141322平方米。
根据住建部《关于城乡规划公开公示的规定》(建规[2013]166号),现将该项目方案进行批前公示,征求相邻单位及群众意见。若对此方案有异议,或认为该方案对自身有重大利益影响要求听证的,请在公示期内持房产证、身份证等有效证件书面向我局陈述或提出听证申请,逾期视为放弃陈述、听证权力,对该项目建设无异议。
公示时间:2018年6月15日—2018年6月24日
联系电话:2381644 2359200(听证)