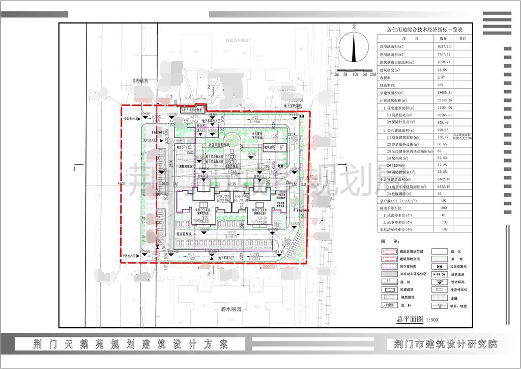
湖北千居房地产开发有限公司申报的天鹅苑位于白云大道89号。规划净用地面积7467.17平方米,总建筑面积28605.31平方米,其中计容建筑面积22143.15平方米,不计容建筑面积6462.16平方米,容积率2.97。
根据住建部《关于城乡规划公开公示的规定》(建规[2013]166号),现将该项目方案进行批前公示,征求相邻单位及群众意见。若对此方案有异议,或认为该方案对自身有重大利益影响要求听证的,请在公示期内持房产证、身份证等有效证件书面向我局陈述或提出听证申请,逾期视为放弃陈述、听证权力,对该项目建设无异议。
公示时间:2018年6月28日—2018年7月7日
联系电话:2381644 2359200(听证)


